Descrizione

COMUNE DI CEPPO MORELLI - In centro paese, in posizione tranquilla ma allo stesso tempo a due passi dalla strada statale della Valle Anzasca, vendesi appartamento sito in casa singola bifamiliare risalente a circa la metà dell'Ottocento. Ci troviamo a circa 750 metri di altitudine e a soli 5 km dalle porte di Macugnaga con il suo Monte Rosa e impianti sciistici.

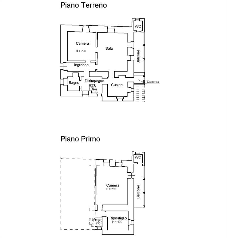
L'immobile oggetto di vendita si sviluppa principalmente su due livelli collegati fra loro da scala interna in legno. Al piano terra vi sono ingresso autonomo su corridoio, soggiorno con bel camino a legna, cucina a volta con dispensa laterale, camera da letto matrimoniale, disimpegno, bagno con vasca e balcone coperto in legno con piccolo wc esterno, oggi dismesso e utilizzato come ripostiglio. Al piano primo vi sono spaziosa seconda camera da letto, locale ad uso ripostiglio e balcone in legno con bella visuale sulla vallata e sul Monte Rosa. Metratura calpestabile dei due piani di circa 115 mq, inclusi balconi ed esclusi muri esterni/interni.

Il riscaldamento è autonomo a radiatori in ghisa con caldaia a condensazione Immergas (anno 2019). Supplemento di camino a legna. Utenze di luce, acqua e gas metano autonome. Infissi in parte in legno doppio vetro e in parte in legno vetro singolo. Porta d'ingresso recentemente sostituita. Inferriate al piano terra. Presenti armadi a muro. Parziale ristrutturazione negli anni Novanta (cucina e bagno). Immobile libero e abitabile fin da subito. Venduto quasi completamente arredato. Collegamento alla fognatura comunale. Tetto non isolato in lamiera con paraneve nuovi, sostituiti nel 2025 (copertura riverniciata circa 8 anni fa).

A completamento della proprietà vi sono:
- tre cantine al piano interrato, di cui due comunicanti fra loro, per una metratura totale di circa 29 mq;
- metà soffitta al piano terzo sottotetto, accessibile da scala esterna in sasso, di circa 27 mq;
- piccolo giardino ad uso comune all'esterno dell'abitazione;
- grazioso giardino privato pianeggiante di circa 210 mq a pochi metri dalla casa. Vedasi colorazione verde nell'allegato estratto di mappa.

Documentazione in fase di verifica. Attestato di prestazione energetica in fase di redazione. Video dell'immobile disponibile nell'annuncio pubblicato sul sito www.belinga.it


Caratteristiche principali

Stato Immobile
Buono
Grado
Medio
Posizione
Montagna
Panorama
Vista Monti
Orientamento
Nord Ovest Sud Est
Lati Liberi
4
Giardino
Privato
Arredi
Semi Arredato
Tipo Soggiorno
Soggiorno
Tipo Cucina
Semi Abitabile
Riscaldamento
Autonomo
Tipo Riscaldam.
Caldaia a Condensazione
Tipo Impianto
Radiatori
Fonte Energetica
Metano
Acqua Calda
Autonoma
Raffrescamento
No
Infissi
Legno Doppio Vetro
Serramenti
Buono
Persiana
Persiana Legno
Pavim. Giorno
Parquet
Pavim. Notte
Parquet
Pavim. Cucina
Ceramica
Pavim. Bagno
Ceramica
Accesso Disabili
No
Accesso interno disabili
Non accessibile
Appartamenti
Uno
Isolamento
Non presente
Isolamento termico
Nessuno
Isolamento acustico
Nessuno
Destinato a residenti
Si
Accessori: Armadio a Muro, Camino, Doppi Vetri, Ripostiglio

Mappa

Località Case Manoli 38, Ceppo Morelli (VB)

Video

Richiedi informazioni

Invia
Cookie preference